APPARTEMENT NEUF T4 DE STANDING À FRASNE (25560)
Prix 321 300 €











Description de l'offre
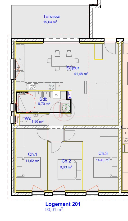
Programme neuf Livraison prochaine Prestations haut de gamme Situé dans un programme de construction neuve à Frasne, au cœur du Haut-Doubs, venez découvrir ce superbe appartement T4 de 90.01 m², pensé pour offrir confort, au 2 eme étages, espace et modernité dans un cadre de vie agréable, à deux pas de la gare TGV. Surface habitable : 90.01 m² Salon / séjour de 41,48 m² 1 terrasse de 15.64 m² 3 chambres lumineuses : 14,45 M2 / 11.62 M2 / 9.83 M2 Salle de bains moderne et WC séparés Chauffage aerothermie air/eau, plancher chauffant au sol Frais de notaire réduits Petite copropriété à taille humaine de 8 lotsEmplacement idéal : écoles, commerces, gare TGV Paris-Lausanne à proximité Contactez-moi dès maintenant pour plus d'informations, plans ou visite du chantier ! Clerc Aurélien au 0783626333 R.S.A.C Besançon : 799758750 Les informations sur les risques auxquels ce bien est exposé sont disponibles sur le site Géorisques : https://www.georisques.gouv.fr/
Annonce proposée par un agent commercial
Description du bien
Label | Value |
---|---|
Prix du bien | 321 300 € |
Référence | CAOAP12490020077 |
Type de bien | Appartement |
Code postal | 25560 |
Surface habitable (m²) | 90,01 m² |
Surface loi Carrez (m²) | 90,01 m² |
Nombre de chambre(s) | 3 |
Nombre de pièces | 4 |
Etage | 2 |
Ascenseur | NON |
Label | Value |
---|---|
Nb de salle de bains | 1 |
Cuisine | AMERICAINE |
Type de cuisine | EQUIPEE |
Mode de chauffage | Aérothermique, Aérothermique |
Type de chauffage | TRAD_TYPE_CHAUFF_AIR_EAU, Au sol |
Format de chauffage | Individuel, Individuel |
Terrasse | OUI |
Nombre de garage | 2 |
Label | Value |
---|---|
statut du syndic | pas de procédure en cours |
Label | Value |
---|---|
Prix de vente honoraires TTC inclus | 321 300 € |
Label | Value |
---|